トップ
応募登録
応募方法
応募登録フォーム
お問い合わせ
作品集
作品集
お問い合わせ
応募登録フォーム
応募方法
応募登録
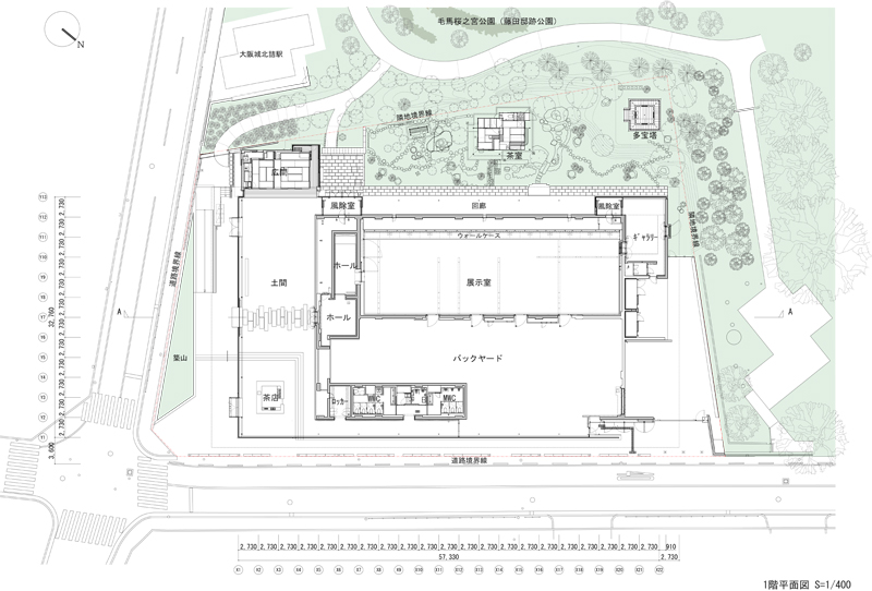
歴史を継承する美術館
賞
優秀賞
タイトル
歴史を継承する美術館
所属会社
大成建設株式会社一級建築士事務所
応募者名
宮本 育美
クライアント
公益財団法人 藤田美術館
設 計
大成建設 宮本育美 渡邉智介 松尾浩樹 杉江夏呼 関山泰忠 中谷扶実子 山下剛史
所在地
大阪府
応募画像
応募パネル
▲