トップ
応募登録
応募方法
応募登録フォーム
お問い合わせ
作品集
作品集
お問い合わせ
応募登録フォーム
応募方法
応募登録
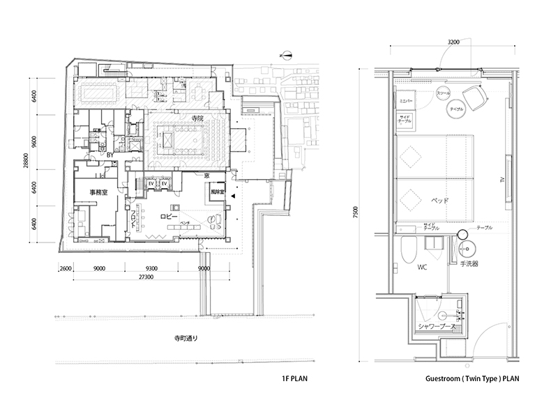
三井ガーデンホテル京都河原町浄教寺
賞
最優秀賞
タイトル
三井ガーデンホテル京都河原町浄教寺
所属会社
株式会社日建スペースデザイン
応募者名
片山 賢
クライアント
鐙籠堂浄教寺、三井不動産株式会社
設 計
株式会社日建スペースデザイン 九十九 優子、橋口 幸平、周 セイ聞
所在地
京都府
応募画像
応募パネル
▲