トップ
応募登録
応募方法
応募登録フォーム
お問い合わせ
作品集
作品集
お問い合わせ
応募登録フォーム
応募方法
応募登録
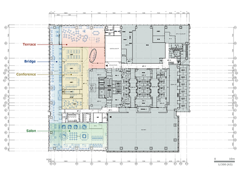
msb SKY Lounge
賞
優秀賞
タイトル
msb SKY Lounge
所属会社
株式会社フィールドフォー・デザインオフィス
応募者名
榊 竜太
クライアント
東京ガス不動産
設 計
建築設計 / 日建設計、三菱地所設計 、照明デザイン / LIGHTDESIGN INC.
所在地
東京都
応募画像
応募パネル
▲