トップ
応募登録
応募方法
応募登録フォーム
お問い合わせ
作品集
作品集
お問い合わせ
応募登録フォーム
応募方法
応募登録
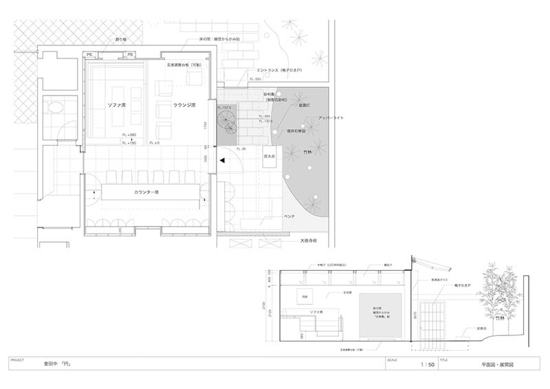
金田中 円
賞
入 選
タイトル
金田中 円
所属会社
堀越英嗣 + 鞍谷万樹 堀越英嗣ARCHITECT 5
応募者名
堀越 英嗣
クライアント
新ばし 金田中
設 計
堀越英嗣 鞍谷万樹 寺澤任弘 堀越優希(堀越英嗣 + 鞍谷万樹 堀越英嗣ARCHITECT5)
所在地
東京都
応募画像
応募パネル
▲