トップ
応募登録
応募方法
応募登録フォーム
お問い合わせ
作品集
作品集
お問い合わせ
応募登録フォーム
応募方法
応募登録
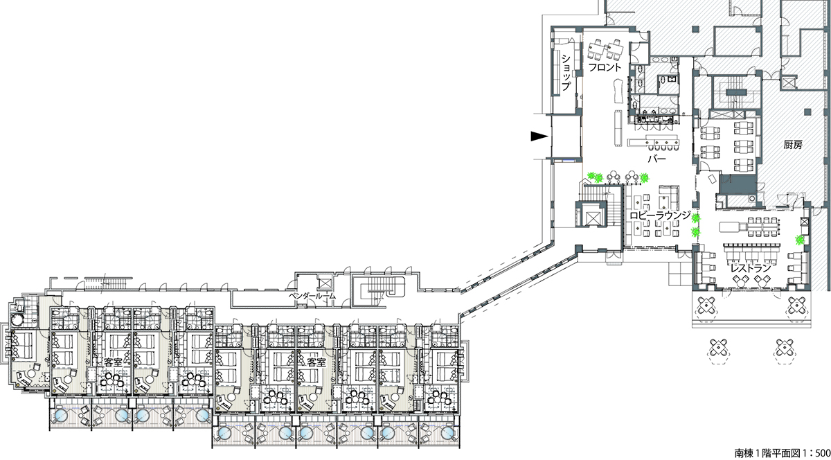
nol hakone myojindai
賞
入 選
タイトル
nol hakone myojindai
所属会社
株式会社日建設計
応募者名
伊藤 愛
クライアント
東急不動産株式会社
設 計
デザイン監修:日建設計 伊藤建則 王笛 実施設計:東急Re・デザイン 照明計画:大光電機TACT
所在地
神奈川県
応募画像
応募パネル
▲